blogil hakkab maht täis saama, niisiis jätkan - ja loodetavasti paremini kui varem - siin: http://www.arhitektuurid.blogspot.com/
143: Rakvere Linnametsa planeerimise võidutöö
In Short: Danish architect Peter Sand has won the international open competition for the Linnametsa residential quarter in Rakvere, Estonia. The competition, aimed at architects under 30, attracted only 9 entries. Below is the winning proposal, and a little interview with the author.

Rakvere Linnametsa rahvusvaheline konkurss sündis linna üldplaneeringus ettenähtud kavatsusest kujundada alast looduslähedane eramurajoon. Hetkel sellist eramutele planeeritud rajooni Rakveres pole. Alla 30-aastastele arhitektidele suunatud võistlusele esitati 9 projekti, võitjaks osutus ainuke osalenud välismaalane, taanlane Peter Sand.
Projektis pakutud planeeringuline lahendus ühest küljest lõhub piirkonna senist struktuuri, teisalt toob siia värskendavat mustrimuutust, mõjumata omati ebakohaselt. Planeeritud ala mõjub kui senise eramurajooni ja metsa vahelise puhvertsoonina. Järgnevalt töö selku ning pisike küsimustering projekti autoriga.
-
The approach of this proposal has been to develop a residential area with a strong connection to the context. By being located on the very edge, where the city and the forest merge together, there has been given a unique opportunity to make an area in the city and in the forest at the same time, with the advantages of both.
This proposal has a strong connection to the world in the forest. Pedestrian paths connect internally and externally, and they make new links and shortcuts to the rest of Rakvere. The new layout extends the borderline between the city and the forest and gives a shorter distance to the trees in the future. Green connections with paths are created in between the new building areas. The gardens are open to provide lots of light into homes. The green connections divide the site into six buildable areas that can work individually and also work together and the surrounding residential areas. Each area has its own access for heavy traffic and they are all dead ends, which means that nobody will pass through by car. That gives the quiet area a focus on light traffic with pedestrians and people on bikes that can easily pass.
It is not necessary to build all areas to get a functionally total layout of the site, which means that the areas can be built in the same speed as they are getting sold. The content of the areas are primarily houses for one or two families and small apartment buildings with up to four apartments as wished in the brief. All buildings have a private garden with easy and often direct access to the forest. Besides the homes a kindergarten and a community centre for the elderly are proposed, but it is important to point out that the suggested layout is so flexible that other divisions of plots can easily be made. This means that for example more or bigger public buildings can be adapted and the locations can be changed, too.
Children's playgrounds have been placed on the paths in the forest, but it is worth mentioning that the forest itself is the best playground you can get.
It is suggested that all buildings will be built of local wood. Wooden structure and facades give beauty and healthy buildings and they adapt visually in a great way into the surroundings. Wood is also very closely connected to the ambition of building this new area with a focus on sustainable solutions. Solar panels are integrated on roofs facing towards the sun and angled ideally for the local conditions to get the biggest effect. Rainwater is collected for being used as flushing in toilets. Heating pumps are installed in all buildings to generate heating in cold winters and to produce cooling in warm summers. Window positions are well thought out, and related to light, sun and air circulation.
-
Väike intervjuu projekti autoriga: | As a bonus, here's a short interview with the project's author, Peter Sand.
First of all I would like to ask how you came to know about the Rakvere competition. For some reason yours was the only one of the 9 entries coming from a foreign architect.
To start a little back in time I attended my first architectural competition seven years ago, and since then participations in architectural competitions have been a very important supplement to my professional development as an architect. Starting as a more or less random selection of competitions my choices are now much more systematized, where I am doing a weekly screening of the market to find new competitions, which can be interesting and especially fun for me to do.
During my studies I have had a primarily focus on the design of buildings, and due to that I have had a natural primary interest in competitions, where the aim has been to submit a proposal of a specific building. Lately my interest in large scale projects has grown, and it is a result of my daily challenges at Public Arkitekter, where I started working in February 2010. There my tasks have primarily been focused on projects within the scale of landscape and urban development, and as a result of that my interest in such projects has of course grown bigger. The competition in Rakvere is in many ways a result of the developments I have gone through, and it is therefore a logical and precise choice I did. To come back to what you actually asked about; I found the information about the competition on the website of The Union of Estonian Architects, and because the competition was not well published internationally, I saw it as an excellent opportunity to participate with the assumption that there would not be lots of international proposals. It turned out to be the true, and the result was my first winning proposal in an architectural competition.
Shortly after the competition in Rakvere I incidentally delivered another city planning competition proposal in Europan 11, which is a big European competition for architects under 40 years. At the moment I am doing two other city planning competitions in Scandinavia, and hopefully my luck from Rakvere will be brought to these three competitions!
It is now over 4 months since you were announced the winner of this competition. Have there already been any future plans or agreements with the clients, or is it too early to ask? Do you know if you’ll be included in the further processes of planning?
Unfortunately it is still too early to ask, because it is not decided yet if I will have any influence in the coming planning process.
Your winning proposal is conceptually very simple. Is this the result of something like an in-depth analysis or more of a ‘right feeling’ kind of thing?
From the very beginning it was my intention to make a conceptually simple project due to the fact that it was only allowed to submit two A1 boards. Actually my concept came up very fast, but lots of other solutions were thought out during the process. Though I kept coming back to my original idea, and fortunately others also found the proposal interesting.
Could you please tell me about your cooperation with the industrial designer Marcus Vagnby - how did it start, including how you received commissions for the villas in Bali, and how do an architect and an industrial designer work together on building projects?
Marcus and I have been friends since the age of seven or so, and we actually grew up on the same street. Today we are very close friends, and luckily we also share the passion for architecture and design. He graduated from the Danish School of Design, and afterwards he studied three years in Copenhagen at the Royal Academy of Fine Arts, School of Architecture, where I got my masters degree. Therefore it was very logic for us to do a collaboration within the fields of architecture and design, and we did our first competition proposal together back in 2004.
Since then lots of things have happened, we have done another six competitions together, and in 2009 we designed the two villas in Bali. Marcus’s parents live in Hong Kong, and through them he was introduced to a Chinese and French couple that lives in Hong Kong too. They wished to get help to the design of two summerhouses in Bali, and of course Marcus would like to come up with the designs. Marcus asked me for assistance, and together we came up with the design proposals. The process was very interesting, where we combined his background as an industrial designer and mine as an architect. The results were two throughout designed villas with lots of details and clear Scandinavian lines with a touch of the local Indonesian building tradition. At the moment one of the villas is under construction, and it is scheduled to be realized within the next half a year.
And to finish, here's a typical interview-question: who do you consider your mentors and greatest influences?
Oh, it is hard to say. I do not have any particular one, but every day I am reading lots of online news and articles about architecture, and that is where I get my primarily inspiration. Besides I read lots of magazines, and I am often to find at the architectural library in Copenhagen. Though, to point someone specific out I am at the moment very interested in Dutch city planning in general, and the Danish architectural office, Lundgaard & Tranberg, is always doing very interesting and beautiful buildings.
Aitäh! | Thank you, Peter!
142: Kumu eelajalugu
Summary: Kumu Art Museum and its locally quarried limestone floors with some interesting prehistoric fossils.
-
Kas keegi on kunagi Kumu kunstimuuseumi fuajees ninali käinud? No mina olen. Tegin mõned pildid ka. Kunagi varem käisin ninali ka soomlaste Ateneumis - seal oli saak muide palju ägedam, leidus liike, mida Kumus naljalt ei leia. Sellegipoolest on Kumu põrandad omajagu põnevust täis, soovitan teil kõigil seal kord ninali käia.
fotod: jk
Tegelikult pole see ju midagi erakordset - erinevad ehitusmaterjalina kasutatavad settekivimid on fossiile täis ja tihti satuvad nad end näitama majade põrandail, seintel, lagedes. Paar muu maailma näidet avalike hoonete põrandatelt: siin ja siin.
Kõige markantsem näide - ja minu isiklik lemmik - on aga juhtum, kus Itaalias asuva katoliku kiriku seinalt leiti... dinosauruse pealuu. Lugu siin.
141: Kaks projekti Rohuneeme urnimüüri konkursile
Summary: Two entries by young and promising architects Joel Kopli, Koit Ojaliiv and Juhan Rohtla (all working in different well-known offices) in the late 2010 competition for architects under 30 to design a columbarium in Rohuneeme cemetery in Viimsi parish near Tallinn. The first project, labelled "Dunes", received 2nd prize, while the other - "Green Square" - was honourably mentioned. (Winning entry can be seen here.) This was the first in a series of competitions for young architects organized by the Union of Estonian Architects in cooperation with municipal governments.
-
Jätkan EAL-i poolt ja Villem Tomiste initsiatiivil algatatud noorte arhitektide konkurssidele esitatud paremate tööde tutvustamist. Siinsed kaks võistlustööd on tehtud esimesele omataolisele, st alla 30 aastaste arhitektide omavahelisele mõõduvõtmisele, mis toimus 2010 lõpus ning eesmärgiks leida parim lahendus Rohuneeme kalmistu urnimüürile. Mõlema töö autorid on lootustandvad tüübid - Joel Kopli (kes töötab praegu Plussis), Koit Ojaliiv (töötab QP-s) ja Juhan Rohtla (töötab 3+1-s). Esimene projekt märgusõnaga "Luited" saavutas konkursil teise koha, sellele järgnev töö märgusõnaga "Roheline ruut" pälvis aga äramärkimise. Päris hea saavutus, arvestades et konkursile esitati tervelt 27 projekti. Kusjuures veidi kurb, et järgnevatele noorte arhitektide konkurssidele laekus millegipärast oluliselt vähem töid - Jääfestivali katusele 13 ja Rakvere Linnametsale vaid 9. Küllap on põhjuseid olnud mitmeid, igatahes loodan, et osavõturohkeid noortele suunatud konkursse tuleb veelgi, sest nagu seni toimunud (ja tegelt üldsegi mitte ainult noortele suunatud) konkurssidest näha - talenti jagub. Usun, et sellised kitsendusega, st suures osas oma jopede vahel toimuvad konkursid kasvatavad head loomingulist konkurentsi, pealegi annavad need võidutööde noortele autoritele hea elukooli projekti elluviimisel.
Niisiis, alljärgnevalt Rohuneeme kalmistu urnimüüri teise koha ning seejärel äramärkimise pälvinud töö. Muide konkursi võidutööd koos taustmaterjaliga meenuta siin.
Niisiis, alljärgnevalt Rohuneeme kalmistu urnimüüri teise koha ning seejärel äramärkimise pälvinud töö. Muide konkursi võidutööd koos taustmaterjaliga meenuta siin.
Ettepanek loobub tsentraalsest planeeringust ideega tekitada hierarhiavabam territoorium, ja väärtustada olemasolevat kaunist maastikku. Surnuaia programm paikneb alal pigem risoomselt, paljandudes kohati luidetena, mille sisse paigutatakse urnimatused. Urnimüür on maastiku osa, mitte eraldi kehand. Surnuaiale tulija jaoks on keskpunkt see kalm, mille juurde kedagi mälestama tullakse, valitud matusekohtade ruumiliselt rõhutamine ei ole meie arvates vajalik.
Teed võivad olla tupikud ja kitsad, kuna tegemist on väikese surnuaiaga. Kalmistu maaalal võiks säilitada erinevad haljastused. Urnimüürid paiknevad vaheldumisi traditsiooniliste haudadega. Urnimüüri ees laieneb sillutatud ala lillede ja küünalde paigutamiseks. Urnimüüri vertikaalne osa valmistatakse valgetest väikesemõõdulistest terratso plaatidest.
Ala struktureerimiseks valitud puulehe motiiv aitab vältida nurgelisi vorme, samas võimaldab ala sama efektiivselt hauaplatsideks jagada kui ortogonaalne võrgustik. Maapinnale kukkunud puuleht on metafoor maaga üheks saamisest.
Žürii protokollist: "Napp töö. Tehislikku vähe. Asetuselt hea. Sobib metsa ja eespool asuva ortogonaalse surnuaia vahele vabaplaneeringuliseks üleminekuks. On olnud julgust välja pakkuda planeeringust täiesti erinev lahendus. Visuaalselt säilitab tühja maastiku, avatud, saab laieneda. Tekitab küsimuse, miks peab üldse kasutama betoonkasti maa sees. Veidi ülbe ja lohakas. Ruumiliselt elamustpakkuvat vähe. Ei täienda maastikku. Jääb keskkonnas nõrgaks, ebamääraseks. Visuaalselt tagasihoidlik. Alal jalutada keeruline, tekivad tupikud. Kõige reaalsemalt teostatav."
Samade autorite teine töö, märgusõnaks "Roheline ruut".
Mentaalne ruum. Antud töö eesmärgiks on püüelda abstraktse lihtsuse, geomeetrilise harmoonilisuse ning mõtteselguse poole. Planeeringu lahendus ei kanna ambitsiooni rõhutada planeerija artistlikust ega loodava ruumi edevust vaid teravustada fookus kalmistu külastajale kui ruumi lõpptarbijale. Oluliseks saab planeeringu puhastamine kõigest üleliigsest, lahenduse vaikuse poole püüdlemine, loomaks ruumi inimese mõtetele. Oluliseimaks aspektiks on külastaja enda puhas tunnetus, mõtted, emotsioonid, mälestused - füüsiline keskkond tema ümber kannab harmoonilise taustsüsteemi, toetava tasakaalupunkti rolli.
Ruutude omavaheline olemasolevatest telgedest tulenev pööratud paigutus annab selge vihje rotatsioonile, liikuvusele kui universumi olemuslikule nähtusele. Pidevalt transformeeruvas maailmas mõistame aja halastamatut tagasipöördumatust, hetke ning maise elu ajutisust.
Füüsiline ruum. Urnimüüride ala on paigutatud lähtuvalt planeeringuga ette nähtud kalmistuala keskele. Kaks omavahel nihkes olevat ruutu jagavad urnimüüride ala vajalikeks tsoonideks - kruusaga markeeritud jalakäijate ala ning muruga markeeritud "tähendusruum" mida võib kasutada ka tuhapuiste alana. Puhasruumi keskel paikneb lehtpuu. Mõlema ruudu välimises perimeetris kulgeb urnimüüride ala.
Urnimüüride ala piiritleb ülejäänud kalmistust mööda välimist ruutu kulgev uue planeeringuvisiooni ainus ruumiline element - hekk. Selline piiritlemine on kohale iseloomulik - kabeli siseruum on seinaga piiritletud välisruumist; vana kalmistu on kiviaiaga piiritletud uuest kalmistust; tee on piiritletud hekiga matmisalast; kogu kalmistu on välismaailmast piiritletud kivimüüriga jne.
Urnimüüride ala tasapinnaline iseloom tuleneb soovist kalmistu alal mitte liialt domineerida vaid pigem sulanduda tasase loomuga maastikku.
Tehases valmismoodulina valmistatud urnimüür on asetatud maksimaalselt maa sisse jättes nähtavaks vaid individuaalselt kujundatud erineva paksusega ning kuldlõikelise plaaniga graniidist hauaplaadi ning seda raamiva heleda 50mm laiuse betoonraami. Urnikambrid on omavahel ühendatud õhuavadega ning isetuulduvad.
Urnimüüriga markeeritud aladele on nähtud ette ka mälestustahvlite paigaldamise võimalus urnimüüride jätkukohtades. Samuti on võimalik urne matta otse pinnasesse (matmisel laieneb graniitplaadi laius 1 meetrini). Urnikambreid on kokku 360 tk.
Žürii arvas projektist nii: "Lihtne ja elegantne lahendus. Meeldiv olemasoleva planeeringu edasiarendus. Reaalselt teostatav. Puudub sära ja meeldejääv idee mis viiks võidule. Puud on uuenduslikkus."
140: Pärnu Jääfestivali kergkatuse konkursi võidutöö
Summary: Winning entry in the late 2010 competition for a lightweight canopy to be used during Pärnu Ice Festival in Feb 2011. The open competition was aimed at young architects under 30. Initiated by the Union of Estonian Architects, the competition was already the second of this kind. The winning entry labelled "House Music" was submitted by Liisi Vähi. Due to an extremely tight schedule, the project wasn't realized in time and is now planned for the next festival in early 2012.
-
2010 lõpus toimus järjekordne konkurss noortele, alla 30 aastastele arhitektidele, mille eesmärgiks oli leida parim lahendus Pärnu Jääfestivali ajaks püstitatavatele kergkkonstruktsioonis varikatustele. Suvepealinnana tuntud Pärnu jaoks on Jääfestival heaks võimaluseks end teisest, imagoloogiliselt vähemtuntud küljest näidata, tekitades linnasüdamesse ka lumistes tingimustes kihava melu koos kõige selle juurde kuuluvaga. Varikatusest pidi saama festivali kese, mille varjus korraldada kontserte, tantsuõhtuid, töötube, vaadata filme ja näitusi, süüa-juua ning mis kaitseks ilmastikuolude eest. Jääfestival toimus 2011 veebruaris, pärast seda oli plaanis kergkatust kasutada suvel Pärnu Veefestivalil Vallikäärus.
13st osalenud võistlustööst valiti žürii poolt parimaks Liisi Vähi projekt märksõnaga "Majamuusika". Konkursijärgselt vaat et reaktiivkiirusel valmima pidanud projekt jäi, tõsi küll, planeeritud ajaks valmimata, kuid on lootust, et teostatud tööd näeb siiski juba järgmisel, 2012 aasta festivalil. Mis põhjustel asi realiseerimata jäi, sellest loe allpool.
Tutvugem kõigepealt tööga:

Alad: Festivali funktsioonid on jaotatud erinevate varjualuste alla. Rüütli tänaval paiknevad laada ja töötubade alad. Hommiku ja Pühavaimu tänaval kohvikute alad.

Inspiratsioon: Varikatus lähtub klassikalisest hoone siluetist, mis on samas omane ka üritustelkide tüüpkarkassile. Tavapärast siluetti liigendades tekib rütm, tänu millele saavad nii plaan kui maht lookleva iseloomu.

Funktsionaalne põhimõte: Tänavale loomulikult paigutuva karkassi peal paikneb varikatuse kattematerjal, mis katab konstruktsiooni nagu nahk, ebasümmeetrilisena lähtudes funktsioonidest ja ümbritsevast.

Konstruktsioon: Karkassi algelemendi ülaosa on 45' nurga all. Ühiku laiused on 3-3,5 meetrit, 0,5 m sammuga. Karkassi üksused kinnituvad maapealsele karkassile, üksuste vahele paigutatakse jäigastavad elemendid. Karkassi katab ilmastikukindel PVC kangas.


Keskkond: Loodav keskkond on inimsõbralik ja loomulik, olles samal ajal mänguline ja kutsudes sündmustest osa saama, jättes siiski inimesele vabaduse valida.

-
Žürii hinnangul oli valitud võidutöö konstruktsioonilt kõige realistlikum, samas variatsiooniderohke ning kenasti linnaruumi sobituv. Positiivsena toodi veel välja, et pakutud lahendus ei sulge tänavat tervikuna, jättes liikumisruumi liiklejaile, samas kattes ja kaitstes kohvikulisi ja müügipunkte. Mängulisust lisab tööle orgaaniline vorm ning võimalus mängida laiuse ja valgusega. Žürii esimehe Peeter Pere hinnangut saab lugeda Sirbi artiklist.

Esitasin Liisile paar küsimust:
JK: Peeter Pere ütles Märzis toimunud auhindamistseremoonial, et antud konkurss on arhitektile tõenäoliselt kõige kiirem võimalus saada oma projekt realiseeritud. Konkursi tulemused selgusid detsembris 2010, festival toimus juba veebruaris. Sinu võidutöö aga jäigi valmimata. Mis juhtus?
LV: Idee projekti kiirest teostumisest oli üllas, kuid ajagraafik oli vast liigagi tihe. Peamine põhjus miks projekt talvel realiseerimata jäi, oli napp eelarve. Etteantud summa piires ja vajalikus mahus ei olnud lihtsalt võimalik varikatuseid püstitada. Seega selle asemel, et teha valmis vaid osa asjast, otsustati asuda pigem ressursse koguma ning teostada projekt järgmiseks festivaliks talvel 2012. Loodetavasti on üritus nüüd juba tuntust kogunud ja huvitatud sponsoreid leidub enam, ning varikatuseid saab näha juba järgmine talv. Töö selle nimel käib.
JK: Kergkatuste eelarve oli äärmiselt väike (keegi osaleja lausa küsis, ega korraldajad ometi üht nulli ära ei unustanud). Sinu tööd pidas žürii konstruktsioonilt kõige realistlikumaks (eeldan, et antud juhul realistlik = võimalikult odav). Kuidas sa oma lahenduseni jõudsid? Kas lõid tööd tehes järjepidevalt potentsiaalset maksumust kokku, et eelarve lõhki ei läheks? Või lähtusid pigem kõhutundest ja eeldusest, et ega antud summaga nagunii välja ei tule?
LV: Minu töö oli realistlik seetõttu, et tegemist oli sisuliselt ainukese lahendusega, mis talvistes tingimustes lumekoormusele vastu peaks. Eelarve osas julgen arvata, et konkursiprojektid omavahel väga ei erine. Projekti eelarve tundus algusest peale väike, kuid konkursitööd tehes lähtusin eelkõige sisulisest poolest ja kontrollisin, et lahenduses praktiline ja esteetiline külg rahalises mõttes tasakaalus oleksid.
JK: Viimasel ajal on installatiivne kunst / ajutine arhitektuur (jääfestari katus liigitub justkui mõlema alla) erialaringkondades suht palju kõlapinda pälvinud, seda nii Objekt nr 2011, Lift11 kui Põhuteatri valguses. Milline on sinu suhe installatiivse kunsti / ajutise arhitektuuriga?
LV: Ajutine arhitetuur või installatiivne kunst tundub arhitekti jaoks väga huvitav ja mitmekülgne valdkond, kuna seal saab igas arhitektis peituvat 'kunsti tegemise vajadust' ausamalt välja elada ja tavapärasemast julgemaid ideid teostada. Vähemtähtis ei ole võimalus saada üsna kiiresti osa publiku vahetutest reaktsioonidest. On suurepärane, et on tekkinud võimalused taolisi projekte ellu viia, kuid ma ise ei ole veel jõudnud neis nii palju kaasa lüüa kui sooviksin.
Aitäh, Liisi!
P.S. - Teisi konkursile esitatud töid saab näha siin, lisa konkursi tausta jm kohta saab lugeda siin.
139: Eramuprojekte 1990ndate algusest
Summary: A small set of unrealized projects for private houses from early 1990's, a period of changes in the whole Estonian society and subsequently architecture as well. At that time some people became filthy rich, and this richness needed to be shown. Houses became bigger - regulations were a matter of bygone days. Some clients were eager to build villas with 40 rooms and towers - as seen on TV - but some were more modest. The set below shows some of those better projects by respectable architects - a couple of villas and duplexes by the classic artist-poet-architect Leonhard Lapin (b 1947), others by the younger Kristel Jaanus (b 1960's), Tõnu Laigu (b 1956) and Kalle Vellevoog (b 1963).
-
(Siia tuleb - võib-olla kunagi - üks väike sissejuhatav lõik ka...)
Villa Ojamaa Rannamõisas. Leonhard Lapin, 1991.
Leo Lapini Villa Ojamaa fassaad on kui lehekülg geomeetriaõpikust. Nii päris- kui valeaknaid on siin igas suuruses ja kujus, osad tõesti ruumi olemust määravad, teised vaid formaalsed pilud, justkui laskeavad. Maja on küll kahekordne, kuid püüab - ei tea millest, kas mingist alaväärsuskompleksist või tingituna naaberhoonestusest? - näida kõrgemana. Appi on võetud “kolmanda korruse” akenderida, tõsi, selle taga asub küll üks kitsas maht, kuid mis, pange tähele, ei avaldu peafassaadil - just selle mahu kohal on aknad puudu. Kõrgust püüavad rõhutada ka peafassaadil asuvaid sissepääse markeerivad kubistlikud arhitektoonid, mis lisavad muidu väga tasapinnaliselt elavale fassaadile ruumilisust. Astmeliselt ahenevad tornikesed on kui käeviibe Henrik Olvile, keda Lapin ikka hinnanud on.


Maja välisilme võib sisemusest petliku mulje jätta. Tegelikult on ruumiprogramm ja -paigutus vaat et konservatiivnegi. Maja koosneb kahest mahust, ühes eluruumid, teises vägagi avar hobiruum, mida valgustab hiiglaslik illuminaatoraken. Mahud on ühendatud teisel korrusel pika halli kaudu. Elamispoole jaotab kaheks keskteljel asuv trepp, majja sisenedes jäävad ühele poole köök koos söögitoaga ning abiruumid, teisele kabinet ja muudest ruumidest harjumuspäratult eraldatud elutuba. Enam kui kolmandiku pinnast katavad maja tagumisel küljel asuvad talveaed ja terrassid.


Teine korrus on suures osas magamistubade päralt. Siit, nagu öeldud, viib ka pikk koridor hobiruumi ning trepp kolmandale korrusele, kus asub mingi väike ruum, võimalik et pesu kuivatamiseks või koli ladustamiseks.

Kahjuks ei oska ma arvata, kellele see maja projekteeriti. Oleks tore teada, missuguse hobi tarbeks nii suurt majaosa tarvis läheb. Aga kuna mahte eraldab kangialune, kust pääseks autoga hoovi, võin eeldada, et küllap on see hobi seotud autode või muude masinatega.
Nagu mainisin, ei peegelda rahutu fassaad peaaegu absurdselt ranget siseplaneeringut, see on pigem midagi omaette ja iseseisvat. Näeb äge välja, kuid sellises majas elada küll ei tahaks.
-
Villa Tammik Sauele. Leonhard Lapin, 1991.

Seda projekti on tellija lugu teadmata küllaltki keeruline lahata. Sümmeetrilise mahuga maja on jaotatud keskteljelt kaheks, jättes mulje paariselamust. Nurgas on aga sissepääs kummassegi majapoolde (paremal poolel on veel üks eraldi sissepääs), lisaks on “korteritel” ühine majatagune talveaed ja bassein. Ruumiprogrammid on majapooltel vähemalt esimesel korrusel küllaltki sarnased, ühel on vaid ülisuure aknaga ateljee, teisel aga kabinet väikese terrassiga. Mõnevõrra nõutuks teevad kummagi poole väga ebakonkreetsed pikerliku kujuga sopilised elutoad, mis mõjuvad kui vaheruumid teiste ruumide vahel. Ses mõttes on see hoopis teine lähenemine võrreldes eelpool nähtud Lapini maja elutoaga.

Kahjuks pole mul ülejäänud korruseplaane, niisiis las jäägu see projekt väikestviisi mõistatuseks.
-
Muide need kaks Lapinit meenutavad oma stilistika poolest seda hoonet Laagris, samas, kus asub veel vähemalt 3 Lapini maja. Otse selle vastas asub näiteks Villa Valeri II. Kahjuks ei tea ma öelda, kas seegi on tema looming. Pigem vast mitte... | Here's a stylistically similar building in Laagri near Tallinn, neighboring at least 3 villas by Lapin. I'm not sure if this one's a Lapin as well... Perhaps not.
-
Muide need kaks Lapinit meenutavad oma stilistika poolest seda hoonet Laagris, samas, kus asub veel vähemalt 3 Lapini maja. Otse selle vastas asub näiteks Villa Valeri II. Kahjuks ei tea ma öelda, kas seegi on tema looming. Pigem vast mitte... | Here's a stylistically similar building in Laagri near Tallinn, neighboring at least 3 villas by Lapin. I'm not sure if this one's a Lapin as well... Perhaps not.
-
Jätkame Lapiniga. Kahest villast koosnev ansambel Viimsisse. Leonhard Lapin, 1992.
Kõrgete trepikojatornidega villad on kavandatud Haabneeme keskuse lähistele Alpikanni teele, kus praegu asuvad samadel kruntidel suvalised mätasmajad. Kahju, et nii läks. Aga olgu.


Villa Vaher (lõikel vasakul, plaanidel paremal) - Selle maja pärliks on esikust algav teokarpjas topelttrepp, mille sisemine sõõr viib teisele korrusele ning väline poolkorrusel asuvasse kabinetti. Kujutan ette, et selline valikuvõimalusega trepp tekitaks esmakordsel külastajal parajat hämmingut. Selle projekti juures pakub mulle suurimat avastusrõõmu üks peaaegu ehedalt adolfloosiliku piilu- või jälgimisarhitektuuri element - nimelt avaneb pooleteise meetri võrra kõrgemast kabinetist vaade üle avara halli otse köögiuksele. Ma miskipärast kardan, et nende ruumide suhe pole juhuslikult selline... (Tekib vaid küsimus, kas see oli tellija või Lapini idee...) Kusjuures teine kabinet on siin ka, otse köögi vastas... Tundub, et peres on rollid paigas. Esimesel korrusel on veel lahmakas elutuba, mida ühendab köögiga lükanduks. Maja tagaosas on veerandringikujuline läbi kahe korruse ulatuv talveaed ning avatud terrass. Teisel korrusel on kolm külgmisele terrassile vaatavat magamistuba, suurim neist vaatab ka talveaiale. Silma torkab ruumikas hall, mille arvelt oleks ehk võinud magamistoad suuremad olla. Hallist avaneb ka tilluke linnupesa-rõdu ning väike pind talveaia trepile ja õhuruumi. Vast et palmipuude lehti lähemalt uurida.
Esimese korruse plaanid | Ground floor plans

Villa Junolainen (lõikel paremal, plaanidel vasakul) - Tegemist on kaksikmajaga, mille üks pool suhteliselt luksuslik ning teine, tänavapoolne, palju askeetlikum. Seejuures trepikoda on neil ühine. Väiksemal “korteril” on esimesel korrusel väike köök ja elutuba ning teisel kaks magamistuba. Lisaruumi annavad veidi veidrad trepikoja järgi kaadruvad pinnad, mille otstarbest ma suurt aru ei saa, need on nagu mingid ülejäägid. No ei tea, teisel korrusel oleks seal hea last nurka panna vms. Suurem “korter” on seevastu oluliselt ruumikam, seejuures eraldi kabinetiga, ning elutoast lükanduksega eraldatud köögiga. Ka siin on (justkui klaasist apsiidina mõjuv) terrassile avanev talveaed. Teisel korrusel on kaks omakorda terrassiga külgnevat magamistuba, millest üks vaatab taas talveaiale. Siingi torkab silma ruumikas hall.
Teise korruse plaanid | First floor plans

Päris mõnusat avastamisrõõmu pakkuvad projektid - kahju, et ehitamata jäid...
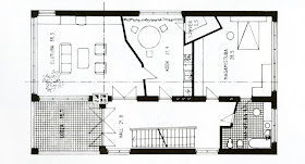
Maja Laagrisse. Kristel Jaanus, 1991.
Kristel Jaanuse kuupjate vormidega liigendatud silindermaja põhikorrusele pääsemiseks peab astuma mööda pikka treppi, samal joonel asub trepp ka maja taga. Sisse pääseb ka mööda maja külge embavat corbulikku pandust, mis viib söögituppa, peatudes korraks suhteliselt kinnise veranda ees.

Ruumiprogrammis ei hakka silma midagi niiväga erakordset: esimesel korrusel asuvad lisaks majandusruumidele köök ja söögituba, osaliselt teisele korrusele ulatuva õhuruumiga elutuba ning kabinet. Neile sekundeerib veerandringi kujuline elutoaga külgnev veranda. Tähelepanu väärib asjaolu, et pool majast on teisest 1,4 meetri võrra kõrgemal, mistõttu peab kabineti ja verandaga elupoolele pääsemiseks kasutama maja keskel asuvat treppi. Omal kohal on siin ka väike piiluarhitektuuri element, nimelt kõrgemal tasandil (ruumide hierarhiat silmas pidades võib-olla ebaloogiliselt, või siis vastupidi, just loogiliselt - pärast söömist hea madalamasse elutuppa vajuda?) asuvas söögitoas on aken, mis vaatab alla verandale ning kust võimalik piiluda ka elutuppa. Päris Loosi mõõtu välja ei anna, kuid asi seegi.


Minu arust päris tüütu aspekt maja juures on ikkagi keskne trepistik. Näiteks tuleb see iseloomulikult välja, kui elanikud tahavad pärast elutoas molutamist magama minna. Selleks tuleb neil tõusta olenevalt kas kahe või kolme (mitte just väheste astmetega) trepijooksu võrra kõrgemal asuvatele magamistubadega tasanditele. Magamistube on siin kokku 4, pooled madalamal, pooled kõrgemal tasandil. Neist alumisel on ka ligipääs veranda kohal paiknevale terrassile.

Majal on osaliselt ka kolmas korrus, seal asub kuupjas ruum, mille funktsiooni ma täpselt ei tea, kuid kust pääseb veel ühele terrassile. Võib-olla on see pesukuivatusruum. Samas... majandusruumid asuvad esimesel korrusel... nii et oleks suht ebamugav nende vahel pendeldada.
Üleüldse tundub see ühe ebamugava majana.
Üleüldse tundub see ühe ebamugava majana.
-
Eramu Sauele. Tõnu Laigu, 1990.
Järgnevat projekti on Laigu ise kirjeldanud nii: "Kord elas mees, kel oli naine ja raha. Kuid peale raha oli tal ka unistus. Unistus ei olnud futuristlik ega argine. See oli lihtsalt teistsugune, kui tavaliselt neil, kel on raha."
Tõnu Laigu projekt kolmekorruselisele madala (põhimõtteliselt) kelpkatusega majale on kavandatud Sauele. Kuna Saue pole mulle eriti tuttav kant, siis ma ei oskagi öelda, kas see maja on ka valmis ehitatud või mitte. Igatahes.
Tõnu Laigu projekt kolmekorruselisele madala (põhimõtteliselt) kelpkatusega majale on kavandatud Sauele. Kuna Saue pole mulle eriti tuttav kant, siis ma ei oskagi öelda, kas see maja on ka valmis ehitatud või mitte. Igatahes.

Väliste tunnuste järgi on see igati oma ajastu laps, peegeldades mitmeid stilistilisi mõjusid, mille kokkusobitamise tulemusel on saadud osalt väga moodsailmeline ning osalt julgelt traditsionalistlikkust tõlgendav elamine. Eraldusjoon on üsna konkreetne, joostes teise ja kolmanda korruse vahelt. Alumiste korruste tahukas justkui ennetaks 90ndate keskpaigas tekkivat uut urbellikku modernismi, teisalt on siin tajuda veidi mängulisemat lähenemist, pidades silmas lõigatud nurgaga magamistoa akent ning vannitoa pooleldi kaetud illuminaatorit (sama motiiv, küll magamistoal, ka ülal Kristel Jaanuse majal). Puitvoodriga ülakorrus koos katusega on heledale tahukale paras kontrast, jättes mulje ehk mingil määral isetekkelisusest, nagu millestki plaanivälisest. Kokku kõlab see küll päris sümpaatselt.
Pooleldi nalja pärast võtsin majalt skalbi maha, näitamaks kui moodsalt selle alumine maht omas ajas mõjub. | The same project remixed / scalped by me. Would've been pretty neat for 1990.


Esimese korruse plaani mul pole, nii et eeldan, et seal on lisaks garaažile kõiksugu majandusruumid ning võimalik, et ka saun.
Maja kastjas vorm ei peegelda kuigivõrd oma sisemust, interjööris möllavad hoopis kõikvõimalikud, kohati lausa hämmingut tekitavad terav- ja nürinurgad.
Näiteks teise korruse plaanis väärib tähelepanu garderoobidestki suurem sahver, mis oma julma teravnurgaga kõrvalasuvasse magamistuppa rammib. Silma hakkavad ka elutuba ja kööki eraldav veidi otsustusvõimetu sein (oleks projekt hilisem, oleks sellest vast üldse loobutud) ning vägagi avar hall, millele annab veel lisaruumi kitsenev trepp. Nurgas on suur lodža, kuhu pääseb vaid hallist ja mitte elutoast. Küllap on sel mingi hea põhjendus.
Maja kastjas vorm ei peegelda kuigivõrd oma sisemust, interjööris möllavad hoopis kõikvõimalikud, kohati lausa hämmingut tekitavad terav- ja nürinurgad.
Näiteks teise korruse plaanis väärib tähelepanu garderoobidestki suurem sahver, mis oma julma teravnurgaga kõrvalasuvasse magamistuppa rammib. Silma hakkavad ka elutuba ja kööki eraldav veidi otsustusvõimetu sein (oleks projekt hilisem, oleks sellest vast üldse loobutud) ning vägagi avar hall, millele annab veel lisaruumi kitsenev trepp. Nurgas on suur lodža, kuhu pääseb vaid hallist ja mitte elutoast. Küllap on sel mingi hea põhjendus.

Viimane, kolmas korrus, püüaks sissepoole tõmmatusega justkui rõhutada oma erilisust või eraldatust alumisest kastmahust. Siin korrusel on kaks magamistuba (kusjuures üks palju kõrgem kui teine), nende vahel aga kabinet, lisaks veranda, (millegipärast kahe sissepääsuga) vannituba ja väike panipaik. Ka siin torkavad sõna otseses mõttes silma garderoobide teravnurgad, neist üks kusjuures otse voodi kõrval. Kummastki magamistoast (ja ka verandalt) pääseb rõdule.

-
Villa Tammneemes. Kalle Vellevoog, 1993
Villa on kavandatud mereäärsele krundile varasemalt poolelijäänud hoone müüridele. Siit ka teatavad piirangud mahulisele ülesehitusele.
Palju on 20-30ndate funki interpreteerijaid ja kopeerijaid, vähe on neid, kes seda hästi teevad. Siinne on meeldivalt proportsioneeritud ja elegantne, otstarbetute viguriteta ja detailides kvaliteetne (terasest reelingud, metallist aknaraamid). Põneval kombel - seda nii Vellevoo hilisema villa-loomingu kui ka tollase üldise arhitektuuripildi aspektist vaadatuna - on tegemist suhteliselt stiilipuhta neofunktsionalistliku arhitektuuriga, mis aastal 1993 võis mõjuda omajagu šokeerivalt. Omal kohal on siin lausa ümar trepikojamaht - 30ndate arhitektuuri lemmikvõtteid. Ebafunkliku detailina jääb kahelt vaatelt silma vaid paar püstist akent.

Esimese korruse esimese tugevamat sorti mulje jätab (jällegi!) lahmakas, osaliselt teise korruseni ulatuva õhuruumiga hall. Eriti hämmeldust tekitab see arvestades tuulekoja ja esiku suurusi. Mõnus mulje jääb otsapidi kokkujooksvatest elutoast ja kaminaruumist, kumbki avaneb eeldatavasti lõunasse vaatavale terrassile. Kui elutuba on mõeldud tõenäoliselt aktiivsemat sorti äraolemise ruumina, siis kaminatuba pigem mugavamaks lõõgastumiseks.

Teine korrus on magamistubade ja kabineti päralt. Hierarhia on paigas: paar trepiastet tõmbavad selge piiri lastele ja vanematele mõeldud majapoolte vahel - viimane asub muidugi kõrgemal. Vanemate poolel asub ka kabinet, kusjuures siin on ainuke pääs hiiglaslikule teraspiiretega terrassile. Ju on siin tarvis hästi suuri mõtteid mõelda. Päris suur rõdu on antud ka vanemate magamistoale. Siin on aga üks minu silmis häiriv asi, nimelt kesk ruumi paiknev korstnajalg. See nagu lõhuks ruumi kaheks osaks ning muudaks neist väiksema, vannitoa-poolse, kasutuks. Võimalik, et see on vaid plaanilt jääv mulje ja tegelik ruum jätaks hoopis teise tunde. Arusaamatuks jääb ka garderoobi (?) asukoht koridoris. Kui see nüüd lihtsalt panipaik pole ja tegelt magamistuppa jäävat garderoobi välja pole joonistatud.

Edit: sain nüüd teada, et tegemist polnud üldsegi kindlale perele projekteeritud majaga, vaid sisuliselt kinnisvaraarendusega, valmis maja oli plaanis müüki panna. Projekt jäi aga teostamata, samal krundil asub nüüd hoopis uhke multistiilne palee.
-
Praeguseks kõik. Kui kellelgi on arvamusi projektide või mu arvamuste kohta, siis olen kuuldel.
138: airBaltic City projekt
Summary: Competition entry for the new airBaltic terminal in Riga airport, conceived by ÖÖ-ÖÖ architects Lembit-Kaur Stöör & Ülo-Tarmo Stöör with Kalle Komissarov. The Stöör brothers are also behind the Estonian embassy project in Riga. More about the terminal below.
-
-
Juba 2010 lõpus päädima pidanud Riia lennujaama uue airBaltic terminali konkurss pole minu arusaamist mööda tegelikult siiamaani ametlikult lõppenud - võitjat pole tänaseni välja kuulutatud. Vaatamata riigi toetusele hiigelkahjumit tootma hakanud firmal pole järelikult jagunud aega või mahti sellise marginaaliaga tegelemiseks. Uue terminali konkurss oli igatahes küllaltki suurejooneline: kandideerima esitati 125 projekti 70st riigist. Vähemalt üks neist saabus naabrite pealinna ka Eestist - töö autoriteks siin juba ühe Riia-projektiga esindatud Lembit-Kaur ja Ülo-Tarmo Stöör koos Kalle Komissaroviga.
Kaur rääkis projekti kohta nõnda: "Meil oli selline linna idee, et kui lennujaamas on kõvasti passimist, siis võiks seda rikastada rohkemate funktsioonidega, kui lihtsalt kaubandus (prognoos või statistika Riias oli nii, et suurem osa passib 4h ja järgmine suurem grupp 7h). Ise arvan, et oleks pidanud rohkem panema rõhku värvilistele piltidele (ajapuudusest tingituna jäi sisemaailma kajastamine kasinaks), aga projekti ideega jäin ise rahule. Seda konkut oli mõnus teha, sest sai ka lennujaamadest rohkem teada. Olen neis küll palju viibinud, aga mitte teadlikult analüüsinud."
Tutvugem tööga:
Tutvugem tööga:
airBaltic Passenger Terminal Architectural Ideas Contest

Introduction
The new airBaltic Passenger Terminal at Riga Airport will be the gateway to Latvia and the city of Riga, a place of arriving and departing. It must be important that public buildings where a large number of people find their way in an environment that makes the complexities of modern travel easy to understand, with invisible, but highly functional back-up systems, provide a service to the highest international standards. Airport is the gateway to our global open world that should be enjoyed and celebrated as great public space, a peoples place.
Unique Identity + Iconic design
Our aim has been to capture the unique potential of Riga airport and to reflect its character in the design to create an iconic architectural statement. We have taken the image of a new city as the main design focus, to give the terminal a clear and iconic form. Approaching the terminal by plane one first sees the dynamic roof, which works as a 5th facade. It resembles a small dense European city, with high quality modern design outlook. In the dark the roof glows and illuminates the space between volumes. Approaching the terminal from landside, the visitor is welcomed by the iconic skyline of airBaltic City. The Departure and Arrivals kerb is lifted so that visitor can access directly to concourse level.


The space is covered by 10 a meter high roof, which creates an elegant first emotion. The main volume of the building and gate lounge wings are kept low and neutral so that the perimeter has a fully glazed facade oh clear high-performance glass. Airside space (lobby / retail and food area) is given the most attention by making it memorable through spatial and functional features. The flock of different volumes gives the space original identity. Commercial Facilities have been mixed with extra functions and themes, which help to memorize the terminal interior space and give it an intimate scale.
Urban Concept
The airBaltic City seeks to create an area of many different spatial environments that are unified into one. The new terminal is a small complete city in itself, giving an almost urban feel with the multitude of spatial and functional amenities. It gives a new dynamic dimension to airBaltic corporate identity.
The airBaltic City seeks to create an area of many different spatial environments that are unified into one. The new terminal is a small complete city in itself, giving an almost urban feel with the multitude of spatial and functional amenities. It gives a new dynamic dimension to airBaltic corporate identity.

Design principles
The new terminal design proposal meets airBaltic’s strategy for creating an efficient hub at the Riga International Airport. The new terminal provides for an efficient flow of passengers through the building and adequate processing facilities for each type of airBaltic passenger passing through the airport. Our aim has been to provide quick, simple and intuitive passenger flows for airBaltic in order to support the minimum connection time requirements needed to maintain its hub operation. The new terminal concept provides also an efficient flow of baggage through the building and adequate processing facilities. Our design proposal provides an efficient flow of private, taxi and public transport vehicles on the landside and adequate road access, also kerb and car park facilities for the origin / destination peak hour passenger vehicle movements. All additional restrictions in the competition brief have been taken into utmost consideration. Terminal and a pron layout can easily expanded in phases over time.








Key Functional Objectives
- Convenient, safe and technically advanced
- Flexibility in operation
- First class design standards for all passengers
- Optimized operational opportunities
- Quick to build, value for money
- Sustainable
- Flexibility for future growth





The Building Section
For low cost, fast track construction and in consideration of the soil conditions no basements have been planned. The section of the terminal is optimized to both minimum and required clearances. From the ground level with an airside road clearance of 4.2 meters we established the principal concourse level at 5 meters and arrival corridor at 8 meters. Below the concourse level, space accommodates baggage systems, storage and service roads. Our design proposal provides a solution to accommodate modern baggage system that is efficient and effective. The height of the building takes into consideration the 30 meters height limit above ground level. The height of the terminal building including piers does not prevent a clear line of sight of the taxiway and runway surfaces from the existing Air Traffic Control Towers. The extending volumes that project itself through roof will suite spaces required for low energy displacement systems and smoke reservoirs. The load baring structure of terminal is designed in steel and concrete- main construction feature is the 10m grid from slender steel columns.




Technical data
Ground floor:
Baggage - 15084
Non-Schengen bus departure - 3000
Non-Schengen bus arrival - 1000
Schengen bus departure - 2100
First floor:
Schengen departure gate - 4500
Non-Schengen departure gate + outbound immigr. 6948
Non-Schengen security and immigr. arrival 2439
Non-Schengen baggage reclaim + customs 1313
Schengen baggage reclaim + customs 1313
airBaltic City = departure lounge 11500
Boardingbass and security 660
Departure and arrivals hall 2827
Landside commercial facilities 900
Airside/Landside technical rooms 420
Airline Offices + technical rooms 670
CT screening for out of gauge baggage and baggage security screening 500
Check-in support 15
Check-in 85
Airline ticketing 30
Baggage service office 15
2nd floor:
Schengen arrival bridge 1450
Non-Schengen arrival bridge 1250
Office 1320
Landside commercial area 1320
Total gross area 60659
Building height: max 30m, piers 13m
Car parking: 1300 spaces in total, which consists of Short Stay (320) and Long Stay (980)
Baggage - 15084
Non-Schengen bus departure - 3000
Non-Schengen bus arrival - 1000
Schengen bus departure - 2100
First floor:
Schengen departure gate - 4500
Non-Schengen departure gate + outbound immigr. 6948
Non-Schengen security and immigr. arrival 2439
Non-Schengen baggage reclaim + customs 1313
Schengen baggage reclaim + customs 1313
airBaltic City = departure lounge 11500
Boardingbass and security 660
Departure and arrivals hall 2827
Landside commercial facilities 900
Airside/Landside technical rooms 420
Airline Offices + technical rooms 670
CT screening for out of gauge baggage and baggage security screening 500
Check-in support 15
Check-in 85
Airline ticketing 30
Baggage service office 15
2nd floor:
Schengen arrival bridge 1450
Non-Schengen arrival bridge 1250
Office 1320
Landside commercial area 1320
Total gross area 60659
Building height: max 30m, piers 13m
Car parking: 1300 spaces in total, which consists of Short Stay (320) and Long Stay (980)






